


10920 & 10922 154 Street NW Edmonton, AB T5P 2J9
E4470830
Multifamily
2026
2 Storey
Listed By
REALTORS® Association of Edmonton
Last checked Apr 4 2026 at 6:03 AM MDT
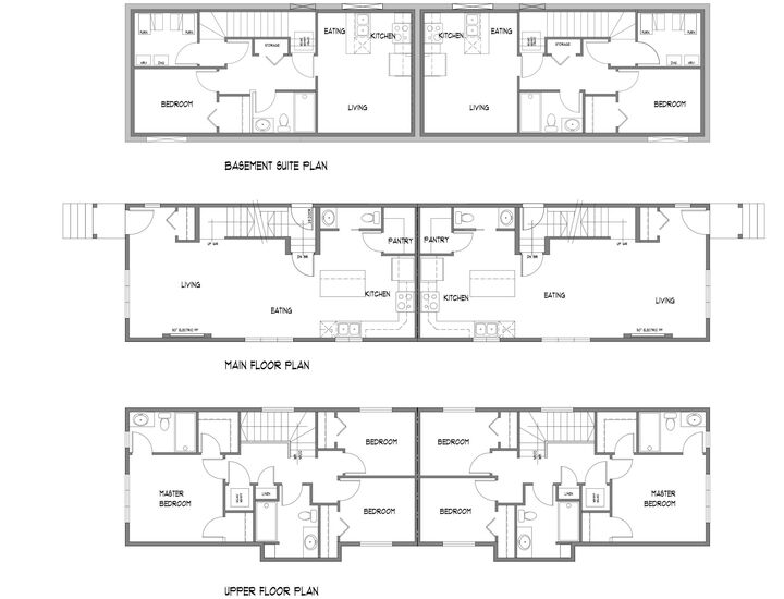
- Full Bathrooms: 6
- Half Bathrooms: 2
- Amenities: Dishwasher-Built-In
- Amenities: Dryer
- Amenities: Garage Control
- Amenities: Stove-Electric
- Amenities: Washer
- Amenities: Garage Opener
- Amenities: Microwave Hood Fan
- Amenities: Refrigerator
- Amenities: See Remarks
- Additional Rooms: Second Kitchen Second Living Room Bedroom Bedroom Bedroom Bedroom
- Landscaped
- Foundation: Concrete Perimeter
- Natural Gas
- Forced Air-2
- Full
- Finished
- Roof: Asphalt Shingles
- Elementary School: Our Lady of Peace
- Middle School: Westminster School
- High School: Ross Sheppard School
- Double Garage Detached
- Double Garage Detached
- 2
- 2,486 sqft
Description